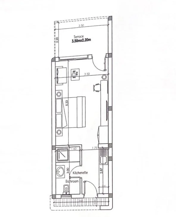
اكتشف هذا الشاليه الرائع للبيع في هاسيندا ويست، بمساحة بناء 45 متر مربع. يتكون هذا العقار الجميل من غرفتي نوم وحمام، ويأتي تشطيباً كاملاً مما يجعله جاهزاً للسكن الفوري. السعر الإجمالي هو 11,987,159 جنيه مصري مع دفعة أولى تبلغ 8,926,498 جنيه مصري ورصيد متبقي 3,060,661 جنيه مصري.
ما أصله؟ خلافاَ للاعتقاد السائد فإن لوريم إيبسوم ليس نصاَ عشوائياً، بل إن له جذور في الأدب اللاتيني الكلاسيكي منذ العام 45 قبل الميلاد، مما يجعله أكثر من عام في القدم. قام البروفيسور ريتشارد ماك